Sve agencije za nekretnine na jednom mestu

WEBNekretnine - oglasi za nekretnine

Nekretnine po lokacijama:   Srbija  Crna Gora  Hrvatska  Bosna i Hercegovina  Slovenija  Ostale države
   LOG IN  |   REGISTRACIJA   |   UNOS OGLASA   |   POSLEDNJI OGLASI   |   NAJČITANIJI OGLASI   |   PREGLED SLIKA   |   PRVA STRANICA  
Petak, 5. Decembar 2025. godineTrenutno oglasa na sajtu 12.447 (46.823 slika)Ukupno čitanja oglasa 131.636.031Ukupno prodavaca na sajtu 17.913
 
3.0 stan na izuzetnoj lokaciji ID#134874

Tekst oglasa
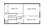
Na prestižnoj lokaciji u centru grada možemo vam ponuditi izuzetno funkcionalan salonac za kompletnu adaptaciju. Visina plafona 2.90 daje osećaj prostranosti a raspored prostorija koje su povezane centralnim hodnikom izuzetnu funkcionalnost. Svojom izuzetnom lokacijom predstavlja odličnu priliku investicije kako za stambeni tako i za poslovni prostor. Stan je uknjižen na 65m2 a sa lođom ima 77m2. PROSTORIJE: hodnik, kuhinja, kupatilo, 3 sobe, lođa. agencijska provizija 2%

Lođa: da
Podrum: da
Odmah useljiv: da
Za renoviranje: da
Uknjižen: da

 
Podaci o prodavcu
Ime prodavca ili agencije za nekretnine Prodavac Lider nekretnine Winner
E-mail adresa prodavca ili agencije za nekretnine E-mail adresa brendlidernekretnine@gmail.com
Telefonski broj prodavca ili agencije za nekretnine Telefonski broj +381113 116-019
Adresa prodavca ili agencije za nekretnine Adresa Bulevar Zorana Đinđića 98, Beograd
 
   
Broj u Registru posrednika   992  

Osnovni podaci o objektu
DržavaSrbija
GradBeograd
Naziv uliceCetinjska
Cena 301.000 €  (3.909 €/m2)
Površina m²77 m2
Broj soba3
SpratVisoko prizemlje

Dodatni podaci
Starost objekta u godinama
Ima terasu
Ima lift
Način grejanja
Telefonska linija
Ima garažu
   
   
Ostalo
Broj pregleda ovog oglasa  37
Poslednji put ažuriran 27.11.2025. 14:00
Datum unosa 28.11.2025. 08:06
 
 
 
Nekretnina: 3.0 stan na izuzetnoj lokaciji ID#134874 Nekretnina: 3.0 stan na izuzetnoj lokaciji ID#134874 Nekretnina: 3.0 stan na izuzetnoj lokaciji ID#134874 Nekretnina: 3.0 stan na izuzetnoj lokaciji ID#134874 Nekretnina: 3.0 stan na izuzetnoj lokaciji ID#134874
Nekretnine iz ove kategorijeOstali oglasi iz ove kategorijeOglasi za nekretnine koje je uneo ovaj prodavacOglasi ovog prodavcaKontaktirajte prodavca ove nekretnineKontaktirajte prodavca Štampanje oglasa za nekretnine Štampa