Sve agencije za nekretnine na jednom mestu

WEBNekretnine - oglasi za nekretnine

Nekretnine po lokacijama:   Srbija  Crna Gora  Hrvatska  Bosna i Hercegovina  Slovenija  Ostale države
   LOG IN  |   REGISTRACIJA   |   UNOS OGLASA   |   POSLEDNJI OGLASI   |   NAJČITANIJI OGLASI   |   PREGLED SLIKA   |   PRVA STRANICA  
Nedelja, 26. April 2026. godineTrenutno oglasa na sajtu 11.480 (42.767 slika)Ukupno čitanja oglasa 134.712.556Ukupno prodavaca na sajtu 17.927
 
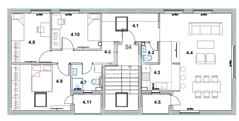
Novogradnja u Borči sa parking mestom, Ovčanski put ID#3711

Tekst oglasa
3.5, 92,92m2, terasa, 2/2, EG, telefon, interfon, parking mesto. Građevinska dozvola.

Prodaja stana – Borča, Ovčanski put

U ponudi moderan troiposoban stan od 92,92m² u kvalitetnoj novogradnji, smešten u mirnom i planski uređenom kompleksu zatvorenog tipa.

✨ Osnovne karakteristike:

Struktura: 3.5
Površina: 92,92m²
Terasa
U cenu uključeno parking mesto
Novogradnja

Lokacija:
Stan se nalazi na odličnoj lokaciji u Borči, u neposrednoj blizini Zrenjaninskog puta, što omogućava brzu povezanost sa ostatkom grada.

Kompleks:

Sastoji se od 14 lamela
Zatvoren tip – sigurnost i privatnost
Projektovan za miran, porodičan život i osećaj zajednice

Grejanje i oprema:

Podno grejanje
Klima uređaj
Energetski efikasan objekat
Stanovi do 80m² – grejanje na električne kotlove
Stanovi preko 80m² – toplotne pumpe (voda–vazduh)

Ambijent:
Kompleks pruža idealan balans između urbanog života i mira – savršen za porodice i sve koji žele kvalitetan i harmoničan prostor za život.

Cena je sa uračunatim PDV. Mogućnost povrata za kupca prvog stana.

Useljivo sredinom 2027.godine. U ponudi stanovi različitih struktura i kvadratura.

Za više informacija i zakazivanje gledanja, kontaktirajte nas na broj telefona 064/8132137 Broj u registru posrednika 1308 Agencijska provizija 2%

Parking: da
Terasa: da
Energetski pasoš: da
Podno grejanje: da
Interfon: da
Telefon: da
Specijalna ponuda: da

 
Podaci o prodavcu
Ime prodavca ili agencije za nekretnine Prodavac BG HOME real estate
E-mail adresa prodavca ili agencije za nekretnine E-mail adresa bghomerealestate@gmail.com
Telefonski broj prodavca ili agencije za nekretnine Telefonski broj (060) 0800-494
Adresa prodavca ili agencije za nekretnine Adresa Rada Končara 2
 
   
Broj u Registru posrednika   1308  

Osnovni podaci o objektu
DržavaSrbija
GradBeograd
Naziv uliceOvčanski Put
Cena 185.840 €  (2.020 €/m2)
Površina m²92 m2
Broj soba3.5
Sprat2

Dodatni podaci
Starost objekta u godinama
Ima terasu
Ima lift
Način grejanja
Telefonska linija
Ima garažu
   
   
Ostalo
Broj pregleda ovog oglasa  13
Poslednji put ažuriran 24.04.2026. 14:20
Datum unosa 25.04.2026. 13:05
 
 
 
Nekretnina: Novogradnja u Borči sa parking mestom, Ovčanski put ID#3711 Nekretnina: Novogradnja u Borči sa parking mestom, Ovčanski put ID#3711
Nekretnine iz ove kategorijeOstali oglasi iz ove kategorijeOglasi za nekretnine koje je uneo ovaj prodavacOglasi ovog prodavcaKontaktirajte prodavca ove nekretnineKontaktirajte prodavca Štampanje oglasa za nekretnine Štampa