Sve agencije za nekretnine na jednom mestu

WEBNekretnine - oglasi za nekretnine

Nekretnine po lokacijama:   Srbija  Crna Gora  Hrvatska  Bosna i Hercegovina  Slovenija  Ostale države
   LOG IN  |   REGISTRACIJA   |   UNOS OGLASA   |   POSLEDNJI OGLASI   |   NAJČITANIJI OGLASI   |   PREGLED SLIKA   |   PRVA STRANICA  
Nedelja, 26. April 2026. godineTrenutno oglasa na sajtu 11.482 (42.776 slika)Ukupno čitanja oglasa 134.713.864Ukupno prodavaca na sajtu 17.927
 
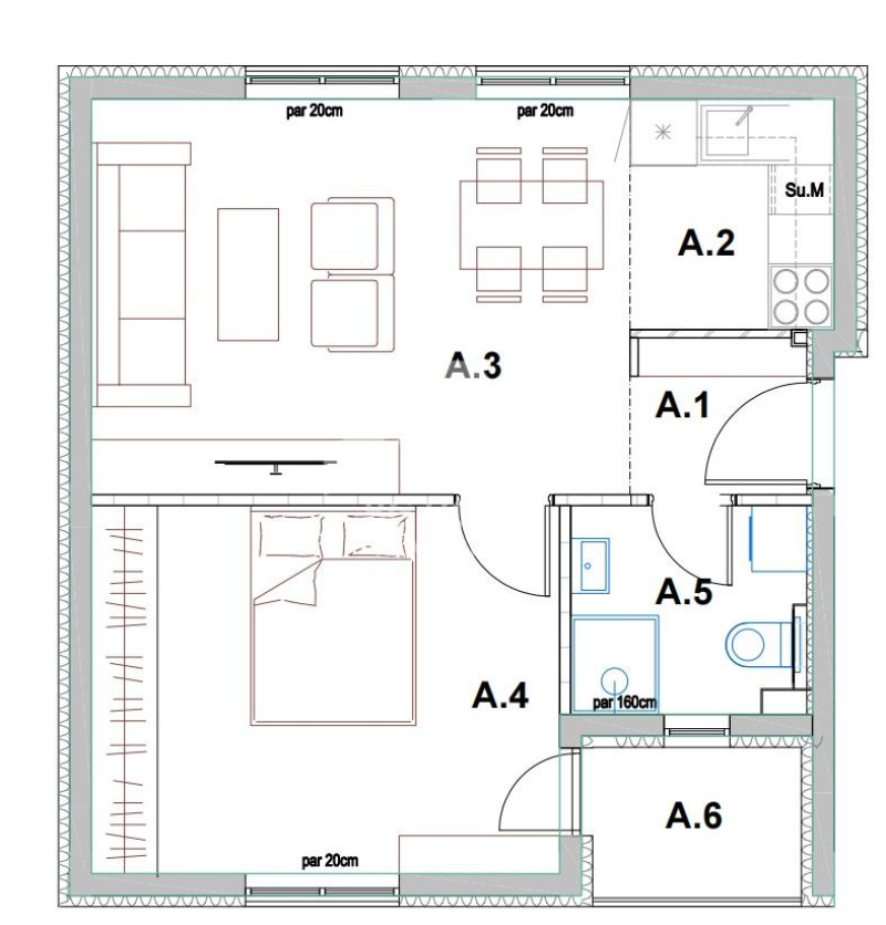
Novogradnja u Borči sa parking mestom, Ovčanski put ID#3713

Tekst oglasa
Prodaja poslovnog apartmana – Borča, Ovčanski put, 43,26m2, PR/2, EG, telefon, interfon, parking mesto. Građevinska dozvola.

U ponudi moderan poslovni apartman u kvalitetnoj novogradnji, smešten u planski uređenom kompleksu zatvorenog tipa.

✨ Osnovne karakteristike:

Struktura: 1.5
Površina: 43,26m²

U cenu uključeno parking mesto
Novogradnja

Lokacija:
Poslovni apartman se nalazi na odličnoj lokaciji u Borči, u neposrednoj blizini Zrenjaninskog puta, što omogućava brzu povezanost sa ostatkom grada.

Kompleks:

Sastoji se od 14 lamela
Zatvoren tip – sigurnost i privatnost
Projektovan za miran, porodičan život i osećaj zajednice

Grejanje i oprema:

Podno grejanje
Klima uređaj
Energetski efikasan objekat
Stanovi do 80m² – grejanje na električne kotlove
Stanovi preko 80m² – toplotne pumpe (voda–vazduh)

Ambijent:
Kompleks pruža idealan balans između urbanog života i mira – savršen za porodice i sve koji žele kvalitetan i harmoničan prostor za život.

Cena je sa PDV. U ponudi stanovi različitih struktura i kvadratura

Useljivo sredinom 2027.godine

Za više informacija i zakazivanje gledanja, kontaktirajte nas na broj telefona 064/8132137 Broj u registru posrednika 1308 Agencijska provizija 2%

 
Podaci o prodavcu
Ime prodavca ili agencije za nekretnine Prodavac BG HOME real estate
E-mail adresa prodavca ili agencije za nekretnine E-mail adresa bghomerealestate@gmail.com
Telefonski broj prodavca ili agencije za nekretnine Telefonski broj (060) 0800-494
Adresa prodavca ili agencije za nekretnine Adresa Rada Končara 2
 
   
Broj u Registru posrednika   1308  

Osnovni podaci o objektu
DržavaSrbija
GradBeograd
Naziv uliceOvčanski Put
Cena 90.867 €  (2.113 €/m2)
Površina m²43 m2

Dodatni podaci
Visina unutrašnjosti (m)
Telefonska linija
   
   
Ostalo
Broj pregleda ovog oglasa  15
Poslednji put ažuriran 24.04.2026. 14:21
Datum unosa 25.04.2026. 13:05
 
 
 
Nekretnina: Novogradnja u Borči sa parking mestom, Ovčanski put ID#3713 Nekretnina: Novogradnja u Borči sa parking mestom, Ovčanski put ID#3713
Nekretnine iz ove kategorijeOstali oglasi iz ove kategorijeOglasi za nekretnine koje je uneo ovaj prodavacOglasi ovog prodavcaKontaktirajte prodavca ove nekretnineKontaktirajte prodavca Štampanje oglasa za nekretnine Štampa