Sve agencije za nekretnine na jednom mestu

WEBNekretnine - oglasi za nekretnine

Nekretnine po lokacijama:   Srbija  Crna Gora  Hrvatska  Bosna i Hercegovina  Slovenija  Ostale države
   LOG IN  |   REGISTRACIJA   |   UNOS OGLASA   |   POSLEDNJI OGLASI   |   NAJČITANIJI OGLASI   |   PREGLED SLIKA   |   PRVA STRANICA  
Petak, 20. Februar 2026. godineTrenutno oglasa na sajtu 11.832 (44.249 slika)Ukupno čitanja oglasa 133.297.198Ukupno prodavaca na sajtu 17.921
 
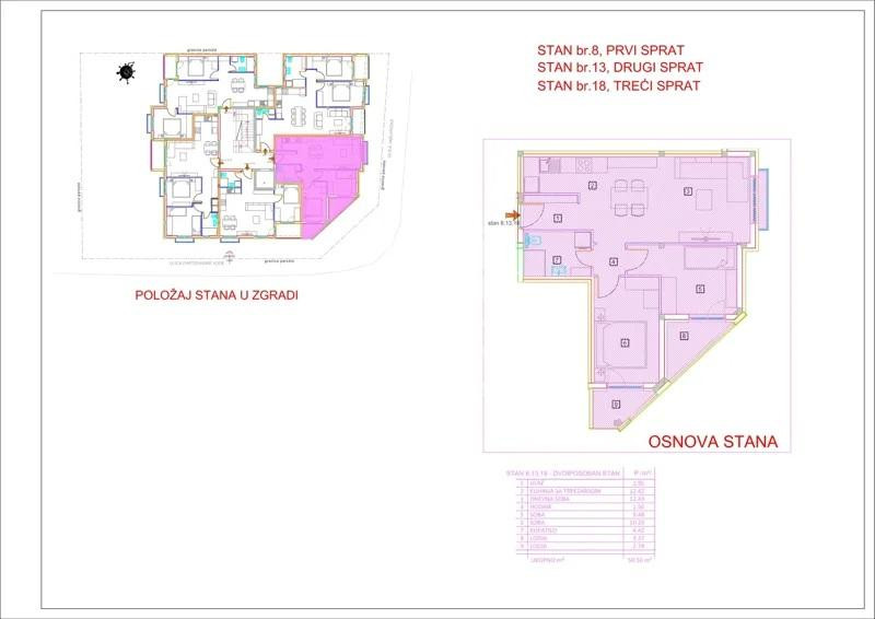
2.5 stan u luksuznoj novogradnji na Ceraku ID#3619

Tekst oglasa
2.5, 59.56m2(dve lođe), EG, podno grejanje, inverter klima, lift, I/IV, telefon, interfon. Građevinska dozvola.

Nova zgrada poznatog investitora. Više od 30 godina iskustva u gradnji stambenih objekata.
Gradnja po savremenim standardima, visok kvalitet materijala i opreme. Termoizolacija(kamena vuna9, PVC-stolarija, EG-podno grejanje(termostat u svakoj prostoriji), iverter klima.
U ovoj fazi gradnje investitor daje mogućnost kupcima da učestvuju u organizaciji prostora, prilagođavanje potrebama kupca.
Odlična lokacija, blizu glavnih ulica, Košutnjaka i svih institucija potrebnih za porodični život.

Zbog lokacije, kvaliteta gradnje, povoljno i kao investicija.
Mogućnost kupovine garažnog mesta.
Pouzdanost, lokacija i kvalitet.
Cena je izražena bez PDV-a

Rok završetka Mart 2027. godine.

Kontakt Agent Miroslav 060/4333-406 Broj u registru posrednika 1308 Agencijska provizija 2%

Autobus: da
Lift: da
Lođa: da
PVC stolarija: da
Interfon: da
Telefon: da
Lux: da

 
Podaci o prodavcu
Ime prodavca ili agencije za nekretnine Prodavac BG HOME real estate
E-mail adresa prodavca ili agencije za nekretnine E-mail adresa bghomerealestate@gmail.com
Telefonski broj prodavca ili agencije za nekretnine Telefonski broj (060) 0800-494
Adresa prodavca ili agencije za nekretnine Adresa Rada Končara 2
 
   
Broj u Registru posrednika   1308  

Osnovni podaci o objektu
DržavaSrbija
GradBeograd
Naziv ulice
Cena 163.790 €  (2.776 €/m2)
Površina m²59 m2
Broj soba2.5
Sprat1

Dodatni podaci
Starost objekta u godinama
Ima terasu
Ima liftDa
Način grejanja
Telefonska linija
Ima garažu
   
   
Ostalo
Broj pregleda ovog oglasa  23
Poslednji put ažuriran 11.02.2026. 13:58
Datum unosa 12.02.2026. 13:05
 
 
 
Nekretnina: 2.5 stan u luksuznoj novogradnji na Ceraku ID#3619 Nekretnina: 2.5 stan u luksuznoj novogradnji na Ceraku ID#3619 Nekretnina: 2.5 stan u luksuznoj novogradnji na Ceraku ID#3619
Nekretnine iz ove kategorijeOstali oglasi iz ove kategorijeOglasi za nekretnine koje je uneo ovaj prodavacOglasi ovog prodavcaKontaktirajte prodavca ove nekretnineKontaktirajte prodavca Štampanje oglasa za nekretnine Štampa