Sve agencije za nekretnine na jednom mestu

WEBNekretnine - oglasi za nekretnine

Nekretnine po lokacijama:   Srbija  Crna Gora  Hrvatska  Bosna i Hercegovina  Slovenija  Ostale države
   LOG IN  |   REGISTRACIJA   |   UNOS OGLASA   |   POSLEDNJI OGLASI   |   NAJČITANIJI OGLASI   |   PREGLED SLIKA   |   PRVA STRANICA  
Petak, 6. Februar 2026. godineTrenutno oglasa na sajtu 12.102 (45.266 slika)Ukupno čitanja oglasa 133.003.165Ukupno prodavaca na sajtu 17.919
 
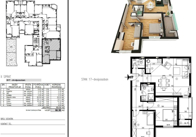
Dvoiposoban stan, NOVI SAD, TELEP

Tekst oglasa
NOVI SAD.TELEP.DVOIPOSOBAN STAN.SA PDV-OM (Svet nekretnine, Novi Sad, Reg. br. 405) Šifra objekta: 1043050

 
Podaci o prodavcu
Ime prodavca ili agencije za nekretnine Prodavac Svet nekretnine 0640101063
E-mail adresa prodavca ili agencije za nekretnine E-mail adresa info@svet-nekretnine.com
Telefonski broj prodavca ili agencije za nekretnine Telefonski broj (021) 6616-396
Adresa prodavca ili agencije za nekretnine Adresa Jevrejska 14b, Novi Sad
 
   
Broj u Registru posrednika   405  

Osnovni podaci o objektu
DržavaSrbija
GradNovi Sad
Naziv uliceTelep
Cena 158.700 €  (2.405 €/m2)
Površina m²66 m2
Broj soba2.5
Sprat2

Dodatni podaci
Starost objekta u godinama
Ima terasu
Ima liftNe
Način grejanja
Telefonska linija
Ima garažu
   
   
Ostalo
Broj pregleda ovog oglasa  45
Poslednji put ažuriran 16.01.2026. 11:24
Datum unosa 27.10.2025. 09:13
 
 
Približna lokacija nekretnine
 
Nekretnina: Dvoiposoban stan, NOVI SAD, TELEP
Nekretnine iz ove kategorijeOstali oglasi iz ove kategorijeOglasi za nekretnine koje je uneo ovaj prodavacOglasi ovog prodavcaKontaktirajte prodavca ove nekretnineKontaktirajte prodavca Štampanje oglasa za nekretnine Štampa