Sve agencije za nekretnine na jednom mestu

WEBNekretnine - oglasi za nekretnine

Nekretnine po lokacijama:   Srbija  Crna Gora  Hrvatska  Bosna i Hercegovina  Slovenija  Ostale države
   LOG IN  |   REGISTRACIJA   |   UNOS OGLASA   |   POSLEDNJI OGLASI   |   NAJČITANIJI OGLASI   |   PREGLED SLIKA   |   PRVA STRANICA  
Četvrtak, 16. April 2026. godineTrenutno oglasa na sajtu 11.831 (44.367 slika)Ukupno čitanja oglasa 134.503.000Ukupno prodavaca na sajtu 17.926
 
Molerova, lux, 3,5-soban, salonac ID#23723

Tekst oglasa
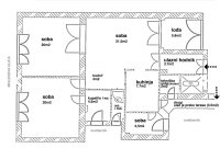
Prodaje se luksuzan, moderno sređen salonski stan sa dva ulaza, sam na trećem spratu sa liftom, u predratnoj četvorospratnoj zgradi sa ukrasnim kamenorezom na fasadi, u Molerovoj ulici. Odlično pozicioniran i tih, blizina Krunske i Kalenić pijace, a sto metara od Bulevara Kralja Aleksandra.

Ukupna površina stana je 96m2 (86m2 knjižene grejne površine plus lođa i terasa). Kompletno je renoviran pre nekoliko godina uključujući sve instalacije, unutrašnja i ulazna vrata, prozore, keramiku. Hrastov parket je u odličnom stanju, a grejanje na klimu ili etažno. Visina plafona je 3m. Stan je dvostran, gleda na ulicu i na veliko, mirno dvorište sa zelenilom.

Od prostorija ima: veće ulazno predsoblje sa dva plakara, dnevnu sobu, dve velike spavaće sobe, jednu manju (devojačku), kuhinju, kupatilo, gostinski toalet sa tušem, dugačku terasu, atraktivnu zastakljenu lođu (2m x 2m) i odvojenu prostoriju za veš mašinu i kotao. Poseduje i dve podrumske prostorije. Pogodnost je i mini market pored ulaza u zgradu.

Stan za svaku preporuku. Vredi pogledati.

Agencijska provizija 2%.

Lođa: da
Terasa: da
Interfon: da
Klima: da
Lux: da
Salonski: da
Uknjižen: da

 
Podaci o prodavcu
Ime prodavca ili agencije za nekretnine Prodavac Ataše nekretnine d.o.o.
E-mail adresa prodavca ili agencije za nekretnine E-mail adresa office@atasenekretnine.rs
Telefonski broj prodavca ili agencije za nekretnine Telefonski broj (011) 4054-407
Adresa prodavca ili agencije za nekretnine Adresa Kraljice Natalije 72/3
 
   
Broj u Registru posrednika   026  

Osnovni podaci o objektu
DržavaSrbija
GradBeograd
Naziv uliceMolerova
Cena 450.000 €  (4.688 €/m2)
Površina m²96 m2
Broj soba3.5
Sprat3

Dodatni podaci
Starost objekta u godinama
Ima terasu
Ima lift
Način grejanja
Telefonska linija
Ima garažu
   
   
Ostalo
Broj pregleda ovog oglasa  142
Poslednji put ažuriran 23.09.2025. 10:43
Datum unosa 25.10.2025. 17:33
 
 
 
Nekretnina: Molerova, lux, 3,5-soban, salonac ID#23723 Nekretnina: Molerova, lux, 3,5-soban, salonac ID#23723 Nekretnina: Molerova, lux, 3,5-soban, salonac ID#23723 Nekretnina: Molerova, lux, 3,5-soban, salonac ID#23723 Nekretnina: Molerova, lux, 3,5-soban, salonac ID#23723
Nekretnine iz ove kategorijeOstali oglasi iz ove kategorijeOglasi za nekretnine koje je uneo ovaj prodavacOglasi ovog prodavcaKontaktirajte prodavca ove nekretnineKontaktirajte prodavca Štampanje oglasa za nekretnine Štampa