Sve agencije za nekretnine na jednom mestu

WEBNekretnine - oglasi za nekretnine

Nekretnine po lokacijama:   Srbija  Crna Gora  Hrvatska  Bosna i Hercegovina  Slovenija  Ostale države
   LOG IN  |   REGISTRACIJA   |   UNOS OGLASA   |   POSLEDNJI OGLASI   |   NAJČITANIJI OGLASI   |   PREGLED SLIKA   |   PRVA STRANICA  
Ponedeljak, 29. Decembar 2025. godineTrenutno oglasa na sajtu 12.089 (45.205 slika)Ukupno čitanja oglasa 132.158.831Ukupno prodavaca na sajtu 17.914
 
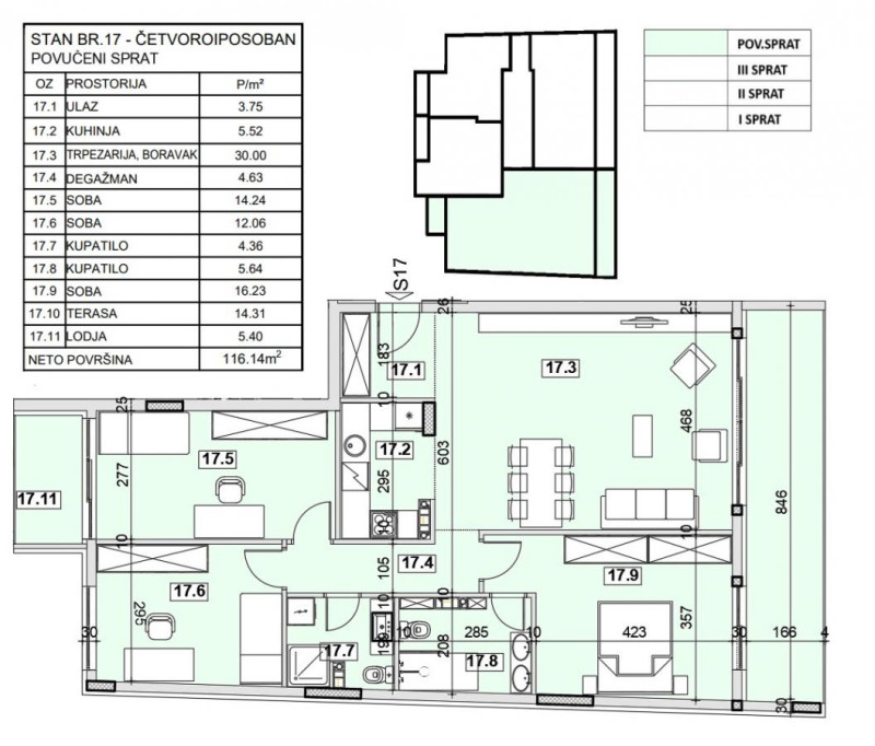
Prostran četvoroiposoban stan u modernoj novogradnji u srcu Zemuna

Tekst oglasa
Na prodaju izuzetno komforan četvoroiposoban stan površine 116,14 m², smešten u odličnoj novogradnji na četvrtom povučenom spratu ulice Cara Dušana – jednoj od najtraženijih lokacija u Zemunu. Stan se odlikuje vrhunskom funkcionalnošću, sa tri odvojene spavaće sobe, dva mokra čvora, prostranom lođom i terasom ukupne površine 14 m², što ga čini idealnim za porodičan život ili luksuzan životni prostor za parove koji žele dodatni komfor.

Zgrada je izgrađena po najvišim standardima savremene gradnje, sa upotrebom materijala vrhunskog kvaliteta: Grohe i Ideal Standard sanitarije, italijanska i španska keramika prve klase, Rehau PVC-aluminijumska stolarija, elektro podizači roletni, kao i Motua brava sistem blindiranih ulaznih vrata. Poseban akcenat stavljen je na energetski efikasno grejanje i hlađenje putem toplotnih pumpi.

Zgrada poseduje lift i urednu dokumentaciju, uključujući građevinsku dozvolu. Cena stana je izražena sa PDV-om, a postoji mogućnost povrata PDV-a za kupce koji kupuju svoj prvi stan.

Stan je useljiv odmah i dostupan za ozbiljne kupce koji traže spoj kvaliteta, udobnosti i vrhunske lokacije.

Za više informacija i zakazivanje gledanja – kontaktirajte nas još danas.

Agencijska oznaka: 63713

 
Podaci o prodavcu
Ime prodavca ili agencije za nekretnine Prodavac Agencija Codex
E-mail adresa prodavca ili agencije za nekretnine E-mail adresa office@codex.co.rs
Telefonski broj prodavca ili agencije za nekretnine Telefonski broj (062) 1723-185
Adresa prodavca ili agencije za nekretnine Adresa Tomasa Jeza 10/6
 
   
Broj u Registru posrednika   030  

Osnovni podaci o objektu
DržavaSrbija
GradBeograd
Naziv uliceZemun
Cena 319.385 €  (2.753 €/m2)
Površina m²116 m2
Broj soba4.5
Sprat4

Dodatni podaci
Starost objekta u godinama
Ima terasu
Ima liftNe
Način grejanja
Telefonska linija
Ima garažu
   
   
Ostalo
Broj pregleda ovog oglasa  122
Poslednji put ažuriran 15.09.2025. 20:28
Datum unosa 23.05.2025. 08:06
 
 
Približna lokacija nekretnine
 
Nekretnina: Prostran četvoroiposoban stan u modernoj novogradnji u srcu Zemuna Nekretnina: Prostran četvoroiposoban stan u modernoj novogradnji u srcu Zemuna Nekretnina: Prostran četvoroiposoban stan u modernoj novogradnji u srcu Zemuna Nekretnina: Prostran četvoroiposoban stan u modernoj novogradnji u srcu Zemuna
Nekretnine iz ove kategorijeOstali oglasi iz ove kategorijeOglasi za nekretnine koje je uneo ovaj prodavacOglasi ovog prodavcaKontaktirajte prodavca ove nekretnineKontaktirajte prodavca Štampanje oglasa za nekretnine Štampa