Sve agencije za nekretnine na jednom mestu

WEBNekretnine - oglasi za nekretnine

Nekretnine po lokacijama:   Srbija  Crna Gora  Hrvatska  Bosna i Hercegovina  Slovenija  Ostale države
   LOG IN  |   REGISTRACIJA   |   UNOS OGLASA   |   POSLEDNJI OGLASI   |   NAJČITANIJI OGLASI   |   PREGLED SLIKA   |   PRVA STRANICA  
Subota, 8. Novembar 2025. godineTrenutno oglasa na sajtu 12.780 (48.043 slika)Ukupno čitanja oglasa 131.068.240Ukupno prodavaca na sajtu 17.909
 
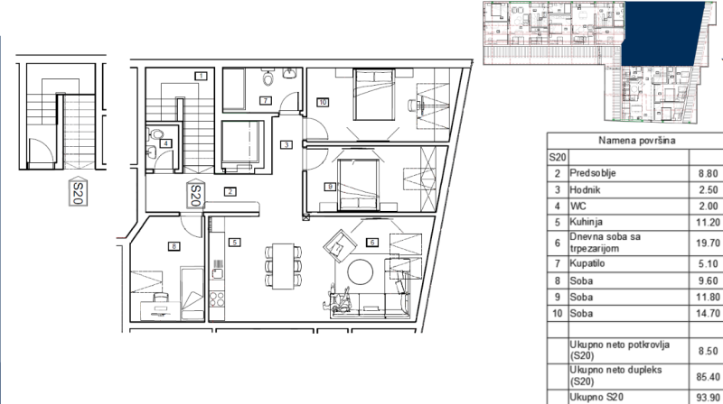
Troiposoban stan, NOVI SAD, PETROVARADIN

Tekst oglasa
NOVI SAD.PETROVARADIN.TROIPOSOBAN STAN.SA PDV-OM (Svet nekretnine, Novi Sad, Reg. br. 405) Šifra objekta: 1042426

 
Podaci o prodavcu
Ime prodavca ili agencije za nekretnine Prodavac Svet nekretnine 0640101063
E-mail adresa prodavca ili agencije za nekretnine E-mail adresa info@svet-nekretnine.com
Telefonski broj prodavca ili agencije za nekretnine Telefonski broj (021) 6616-396
Adresa prodavca ili agencije za nekretnine Adresa Jevrejska 14b, Novi Sad
 
   
Broj u Registru posrednika   405  

Osnovni podaci o objektu
DržavaSrbija
GradNovi Sad
Naziv ulicePetrovaradin
Cena 181.800 €  (1.955 €/m2)
Površina m²93 m2
Broj soba3.5
Sprat3

Dodatni podaci
Starost objekta u godinama
Ima terasu
Ima liftDa
Način grejanja
Telefonska linija
Ima garažu
   
   
Ostalo
Broj pregleda ovog oglasa  72
Poslednji put ažuriran 04.11.2025. 10:03
Datum unosa 15.04.2025. 09:06
 
 
Približna lokacija nekretnine
 
Nekretnina: Troiposoban stan, NOVI SAD, PETROVARADIN
Nekretnine iz ove kategorijeOstali oglasi iz ove kategorijeOglasi za nekretnine koje je uneo ovaj prodavacOglasi ovog prodavcaKontaktirajte prodavca ove nekretnineKontaktirajte prodavca Štampanje oglasa za nekretnine Štampa