| 
        
          | Jednoiposoban stan, NOVI SAD, TELEP 
 
 
              
                | 
                    
                      | 
                          
                            | 
                                
                                  | 
                                      
                                        | Tekst oglasa NOVI SAD.TELEP.JEDNOIPOSOBAN STAN. SA PDV-OM(Svet nekretnine, Novi Sad, Reg. br. 405) Šifra objekta: 1042168
 |  |  
                                
                                  | 
 |  |  
                                  | Podaci o prodavcu |  
                                  |  Prodavac | Svet nekretnine 0640101063 |  
                                  |  E-mail adresa | info@svet-nekretnine.com |  |  Telefonski broj | (021) 6616-396 |  |  Adresa | Jevrejska 14b, Novi Sad |  |  |  |  |  |  |  | Broj u Registru posrednika | 405 |  | Osnovni podaci o objektu
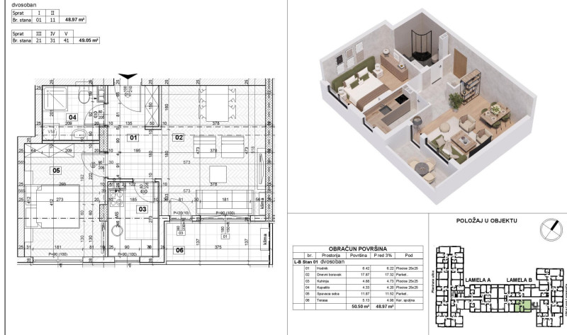
 |  | Država | Srbija |  | Grad | Novi Sad |  | Naziv ulice | Telep |  | Cena | 131.500 €  (2.684 €/m2) |  | Površina m² | 49 m2 |  | Broj soba | 1.5 |  | Sprat | 4 |  | Dodatni podaci
 |  | Starost objekta u godinama |  |  | Ima terasu |  |  | Ima lift | Da |  | Način grejanja |  |  | Telefonska linija |  |  | Ima garažu |  |  
                                  |  |  |  
                                  |  |  |  
                                  | Ostalo |  
                                  | Broj pregleda ovog oglasa | 66 |  
                                  | Poslednji put ažuriran | 05.09.2025. 12:46 |  
                                  | Datum unosa | 28.03.2025. 09:07 |  
                                  |  |  
                                  |  |  Približna lokacija nekretnine |     |  |  |  |  
                |  |  |  |