Sve agencije za nekretnine na jednom mestu

WEBNekretnine - oglasi za nekretnine

Nekretnine po lokacijama:   Srbija  Crna Gora  Hrvatska  Bosna i Hercegovina  Slovenija  Ostale države
   LOG IN  |   REGISTRACIJA   |   UNOS OGLASA   |   POSLEDNJI OGLASI   |   NAJČITANIJI OGLASI   |   PREGLED SLIKA   |   PRVA STRANICA  
Četvrtak, 7. Maj 2026. godineTrenutno oglasa na sajtu 11.947 (44.857 slika)Ukupno čitanja oglasa 134.947.078Ukupno prodavaca na sajtu 17.927
 
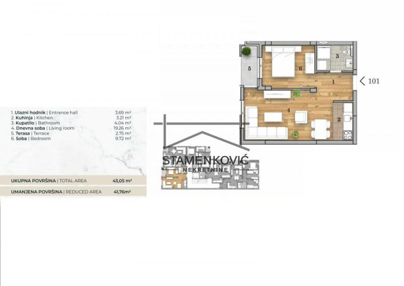
Liman V-Nov dvosoban stan ID#7040

Tekst oglasa
Prodajemo nov dvosoban stan u luksuznom novoizgrađenom objektu. Ovaj objekat je savršen izbor za sve koji traže luksuzne stanove na urbanoj lokaciji. Sa modernim arhitektonskim rešenjima, donosi elegantan dizajn eksterijera koji se besprekorno uklapa u okolinu, stvarajući jedinstvenu atmosferu u kojoj će stanari uživati.
Stan je osmišljen za savremen način života, pružajući visok nivo udobnosti, funkcionalnosti i estetike. Svaka prostorija je pažljivo dizajnirana sa visokokvalitetnim materijalima i opremom, garantujući dugoročnu izdržljivost i luksuzan izgled.
Oprema:
Nemački prozori poznati po dugotrajnosti i kvalitetu.
️ Termoizolacija: Deblji zidovi i dodatna fasadna izolacija od 10 cm donose znatne uštede u računima za grejanje i hlađenje.
Premium vrata sa zvučnom izolacijom od 35 dB teže 120 kg i uključuju estetske okvire.
️ Kalorimetri: Omogućavaju vam da sami regulišete temperaturu u stanu, što dodatno smanjuje troškove grejanja.
️ Estetika fasade i ulaza: Posebno dizajnirani za luksuzan izgled i topao doček.
Premium kupatila: Opremljena prvoklasnim pločicama, Hansgrohe galanterijom, soft-close WC šoljom, i premium lavaboom sa fiokama.
Termosilent međuspratna izolacija: Povećava kvalitet života i privatnost između spratova.
Tarket višeslojni parket: Premium kvalitet za dugotrajan sjaj i otpornost.
One key lock sistem: Jednim ključem otvarate ulazna vrata zgrade i stana za dodatnu praktičnost.
Video nadzor: Kamere postavljene na svim ključnim pozicijama zbog vaše bezbednosti. ************ Ukoliko je ova nekretnina na nekom portalu oglašena sa nižom cenom ,koju je prethodno odobrio vlasnik nekretnine , ta niža cena važi i u našoj ponudi........................STAMENKOVIĆ NEKRETNINE -NOVI SAD , Upisan U Reg. Pos. Broj 1170

Autobus: da
Lift: da
Terasa: da
Energetski pasoš: da
PVC stolarija: da
Sigurnosna vrata: da
Interfon: da
Internet: da
Kablovska TV: da
Klima: da
Telefon: da
Video nadzor: da
Lux: da
Hitno: da
Specijalna ponuda: da

 
Podaci o prodavcu
Ime prodavca ili agencije za nekretnine Prodavac Trg nekretnine
E-mail adresa prodavca ili agencije za nekretnine E-mail adresa Kontaktirajte prodavca
Telefonski broj prodavca ili agencije za nekretnine Telefonski broj +381668 408-407
Adresa prodavca ili agencije za nekretnine Adresa Trg Mladenaca 5, Novi Sad
 
   
Broj u Registru posrednika   1170  

Osnovni podaci o objektu
DržavaSrbija
GradNovi Sad
Naziv ulice
Cena 124.750 €  (2.970 €/m2)
Površina m²42 m2
Broj soba2
Sprat1

Dodatni podaci
Starost objekta u godinama
Ima terasu
Ima liftDa
Način grejanja
Telefonska linija
Ima garažu
   
   
Ostalo
Broj pregleda ovog oglasa  607
Poslednji put ažuriran 08.04.2026. 11:11
Datum unosa 27.11.2025. 18:05
 
 
 
Nekretnina: Liman V-Nov dvosoban stan ID#7040 Nekretnina: Liman V-Nov dvosoban stan ID#7040 Nekretnina: Liman V-Nov dvosoban stan ID#7040 Nekretnina: Liman V-Nov dvosoban stan ID#7040
Nekretnine iz ove kategorijeOstali oglasi iz ove kategorijeOglasi za nekretnine koje je uneo ovaj prodavacOglasi ovog prodavcaKontaktirajte prodavca ove nekretnineKontaktirajte prodavca Štampanje oglasa za nekretnine Štampa